0948 623 125 facebook

Prenájom moderného obchodno-kancelárskeho priestoru | Dolný Kubín – Veľký Bysterec

dohodou

LOKALITA

Dolný Kubín, okres Dolný Kubín

TYP NEHNUTEĽNOSTI

Komerčné objekty

Obytná plocha

78 m2

Počet poschodí

1

POČET IZIEB

5

Detaily ponuky

Ponúkame na prenájom atraktívny podnikateľský priestor v novej modernej budove, ktorá bola nominovaná na architektonickú cenu CE ZA R. Ideálna voľba pre firmy, ktoré hľadajú reprezentatívne sídlo v kvalitnom architektonickom prevedení.

Lokalita: Dolný Kubín – Veľký Bysterec
Umiestnenie: prízemie
Vlastný samostatný vstup
Veľké výkladové okná s elektricky ovládanými screenovými roletami – komfort, súkromie a ochrana pred slnkom

Základné informácie
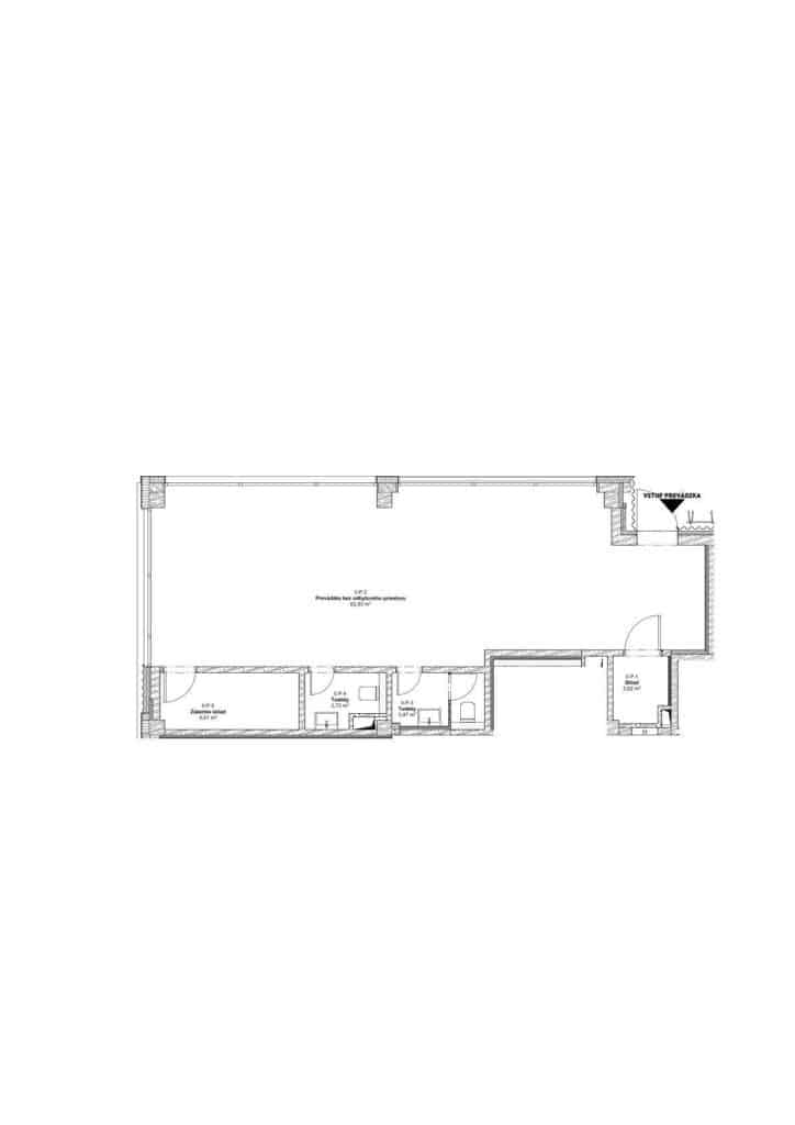
Výmera: cca 78 m²

Dispozícia:
hlavný obchodno-kancelársky priestor
1× sklad
2× toaleta

Vhodné ako: kancelária, obchod, showroom, služby, sídlo firmy

Finančné podmienky:
Nájom: Info v RK
Zálohy (bez DPH):
elektrická energia: 41,12 €
studená a teplá voda + odpadové vody: 10,28 €
ohrev teplej úžitkovej vody: 15,42 €
teplo: 60,65 €
domovnícke služby, údržba: 13,36 €

Kaucia: 3-mesačný nájom

Výhody priestoru:
– moderná architektúra a reprezentatívny vzhľad
– prestížna novostavba s architektonickou nomináciou
– výborná viditeľnosť z ulice
– elektricky ovládané screenové rolety na výkladoch
– bezbariérový prístup
– flexibilné využitie pre podnikanie
– parkovanie pred budovou

https://rkorea.sk/ochrana-sukromia/

    Mám otázku ohľadom tejto ponuky

    Ochrana osobných údajov

    Správa odoslaná

    Ďakujeme za záujem, budeme Vás kontaktovať.

    Prenájom moderného obchodno-kancelárskeho priestoru | Dolný Kubín – Veľký Bysterec